Create Your First Project
Start adding your projects to your portfolio. Click on "Manage Projects" to get started
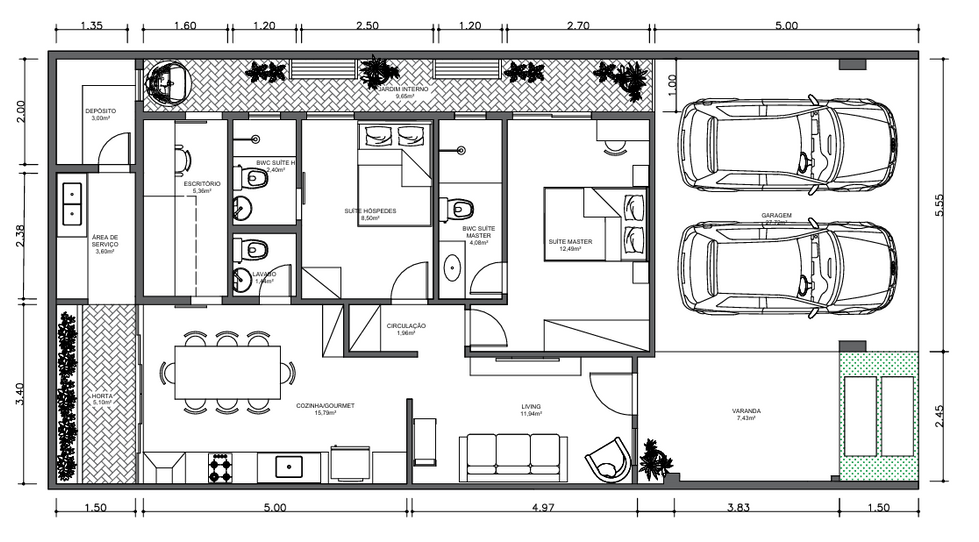
Casa Raízes
Tipo de projeto
Arquitetônico e Interiores
Data
Janeiro 2026
Localização
Feira de Santana, BA
A Casa Raízes é um projeto de reforma arquitetônica e interiores que nasce da busca por um morar mais conectado à natureza, ao cotidiano e às referências brasileiras. A proposta valoriza a simplicidade, o conforto e a permanência, criando uma casa que acolhe e convida a desacelerar.
O projeto foi desenvolvido a partir da integração entre espaços internos e externos, incorporando horta, jardim interno e áreas de respiro como elementos estruturantes da arquitetura. A natureza não aparece como cenário, mas como parte ativa da experiência de morar, influenciando o conforto térmico, a iluminação natural e a atmosfera dos ambientes.
As cores claras ampliam a sensação de leveza e frescor, enquanto os materiais e texturas dialogam com uma brasilidade contemporânea, presente de forma sutil e sensorial. Nos interiores, cada espaço foi pensado para a vida real — cozinhar, descansar, receber e cuidar — com soluções que equilibram funcionalidade, afeto e identidade.
Mais do que uma reforma, a Casa Raízes é um projeto que traduz o desejo de viver de forma simples, consciente e conectada, onde arquitetura e interiores se unem para criar um lar que respira, acolhe e cria vínculo com quem o habita.



















































































